Home Region Sport Magazin Schweiz/Ausland Agenda
Immo & Bau
04.03.2019
06.09.2020 15:33 Uhr

"WOHNPARK SCHÄFLIWEG BAZENHEID" - ALLES ANDERE ALS 0815

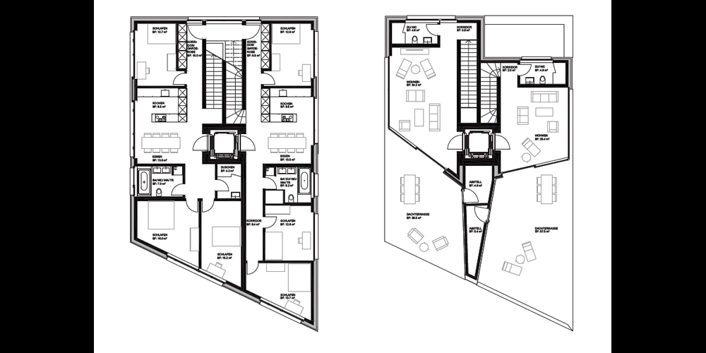
"Wohnpark Schäfliweg Bazenheid": An attraktiver und sonniger Lage entstehen in drei Mehrfamilienhäusern 20 Eigentumswohnungen mit unterschiedlichen, aber perfekt den Bedürfnissen angepassten Grundrissen.

Für jeden Geschmack das Richtige

Die Vielfalt an unterschiedlichen Wohnungsgrössen bietet für jeden Geschmack das Richtige. In den Wohnungen im Erdgeschoss können Sie den Kindern beim Spielen im Garten freien Lauf lassen, in den Obergeschossen finden Sie bequemes und überschaubares Wohnen und das ganz spezielle Erlebnis bieten die Maisonette-Wohnungen in den Attikageschossen.

Bild: Wil24

Das Tor zum Toggenburg

Bazenheid ist der perfekte Ausgangsort für ein erfülltes Leben. Die Region Toggenburg liegt direkt vor der Haustüre. Das breite Angebot an Wanderwegen, Entdeckungstouren und Ausflugszielen bildet die beste Voraussetzung für ein Leben in einer intakten Wohnregion.

(Visualisierungen: Büchler AG Immobilien-Dienstleistungen)

Bild: Wil24

Kontakt Verkaufsberater: Reto Büchler und Cornelia Stadler Büchler AG, Immobilien-Dienstleistungen Henauerstrasse 19, 9244 Niederuzwil Telefon 071 944 12 12 info@buechler-immo.ch www.buechler-immo.ch

Wil24
Demnächst